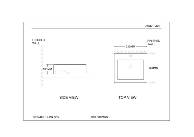
Uncategorized L636 L636 Above Counter / Wall Hung Wash Basin Middle Tap Hole Size: 370 (L) x 340 x 130 (H) Share this: Share on X (Opens in new window) X Share on Facebook (Opens in new window) Facebook Like Loading...